Renovations
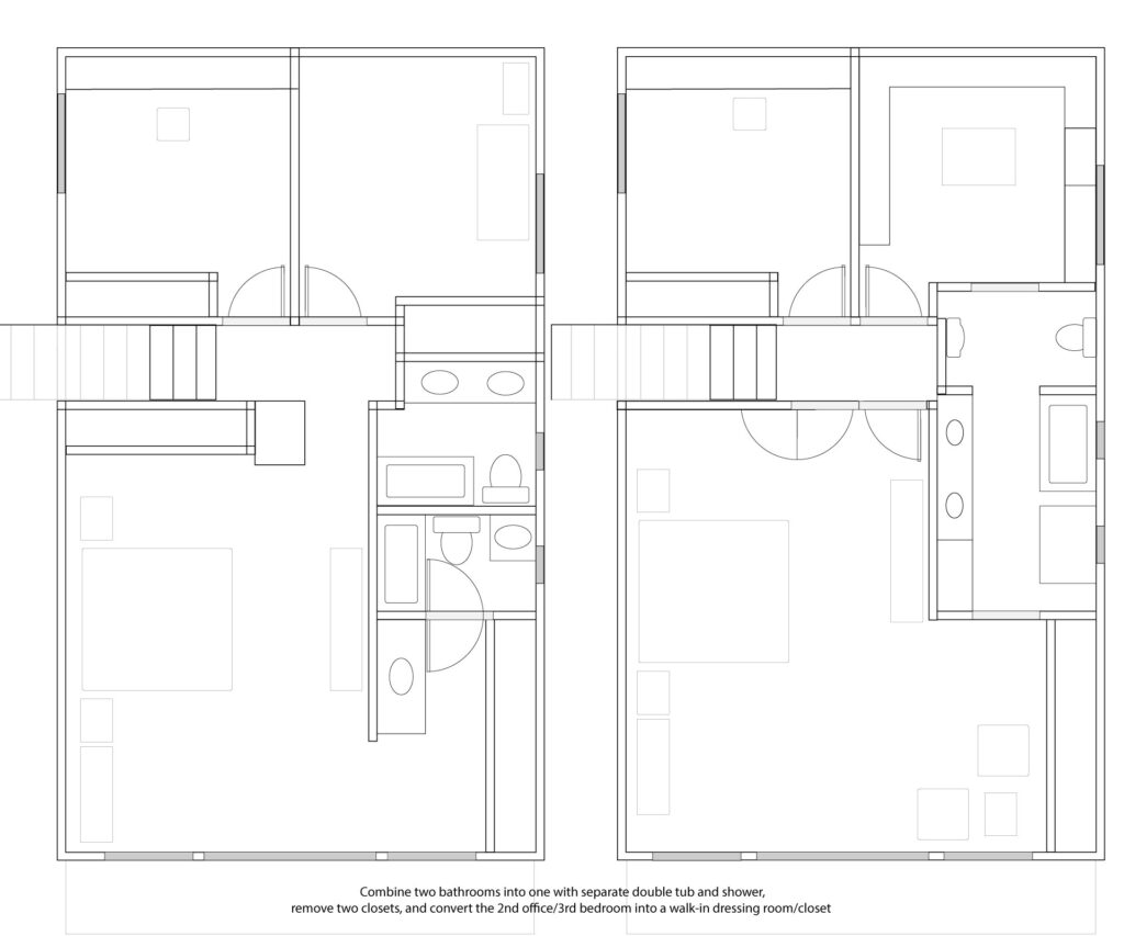
We’ve finished replacing our roof and remodeling1 a year after a tree hit our bedroom during Hurricane Helene2. We’ve been living downstairs in our guest bedroom for a little over a year. We called the guest bathroom shower ‘the coffin’ because it’s that tiny. Since we had to rip apart the ceiling of the master to repair the roof, it only made sense to move some walls and make some improvements while we were at it. It started with this mockup:

We had to pull off part of the roof to replaces trusses… which happened to fall above the wall for a secondary vanity that we never liked. We decided to combine both bathrooms and en-suite an attached dressing room. We hired a general contractor and given that our insurance depreciated everything to the nth degree, it was fairly costly. We’re lucky we had a bit of savings to buffer the hit. Not enough of a buffer to move out though and let me just say that living through a construction zone isn’t exactly easy – the folks in and out of your house for months on end, the dust, mess, noise, and just general feeling of not a steady home rock. It actually looks relatively tame here:


I’ve published a gallery of all of the project photos on the house project page3 which include a good bit of mess involved. We’ve tossed around the idea of building our next house and this was a good opportunity to learn a good bit along the way. We learned that oil based paint thinner when it touches a hot element like that of a dryer or an oven smells like gas. We learned right before replacing our oven but we our clothes dryer needed to be replaced anyway. We learned to swap out the duct filters weekly. Most of all we learned to encourage our subcontractors along the way. Being nice costs absolutely nothing. Thank you and offering to buy lunch goes a long way.
Since I work from home, we had to first move my office downstairs which mean I got a new desk and workspace I’m now calling the studio4. Ginny got a new office and a dressing room to boot. We essentially converted a four bedroom three bath house in to a two bed two bath. We’re lucky that our house had some wiggle room for improvements with the surrounding comparable homes because we’ll get to enjoy the improvements for the next umpteen years.
If someone asked for advice on a major renovation: get a contractor you trust and who is accountable; establish written timelines and costs; have visual written plans; communicate often to your contractor – like on a meeting schedule; be prepared for hurdles and changes; do your research on materials and hardware; be prepared to run over budget; set realistic expectations and understand that nothing is going to be perfect; try to learn and enjoy the process along the way.
As the project was dragging on nearing completion, we went through the ups and downs on it. And right as your thinking now nice it is, the invoices start rolling in. Our contractor reminded us that some of his clients still weren’t able to return to their homes. We gave one of our demolition guys our old television because we didn’t have anywhere to store it. I spent a good bit of time chatting with the various construction workers and I learned a lot. I tried not to get in the way, but I did ask a lot of questions. It’s easy to find common ground and I really think they appreciated the show of appreciation.
We called this Project 2025 and not unlike the namesake, it was somewhat rocky at times and we’ve still got to settle with the insurance company. Those home renovation ‘reality’ shows you see on the tube are not quite the same. Lucky for us, we can now soak it off in a nice long bath or shower.


- TIL – notes/house/bath – https://davidawindham.com/til/notes/house/bath
- TIL – notes/house/helene – https://davidawindham.com/til/notes/house/helene
- Wha – Glenridge – https://davidawindham.com/wha/glenridge/
- Den Studio – https://davidawindham.com/den-studio/
- Project 2025 – https://davidawindham.com/project-2025/